项目名称:模拟器支撑结构加工和安装
项目联系方式:
项目联系人:周老师
项目联系电话及邮箱:[email protected]
预算金额:48万元
采购单位联系方式:
采购单位:休闲小栈
联系人和联系方式:刘文涛,82669067,[email protected]
联系地址:西安市咸宁西路28号休闲小栈
东一楼237
一、采购项目的名称、数量、简要规格描述或项目基本概况介绍:
名称:模拟器支撑结构加工和安装
数量:1套
1、简要规格描述:
(1)根据采购方设计图纸要求,完成模拟器支撑结构机械加工,模拟器支撑结构包括立柱、龙门架及斜坡木龙骨。见图1。

图1

图2
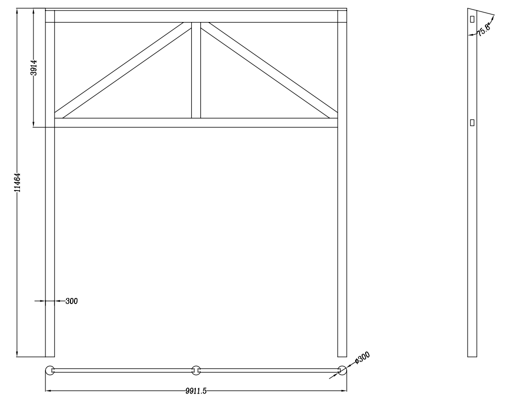
(2)立柱4组,每组长12m,宽1.3米,柱子直径300mm。要求其中12m的竖直圆柱部分为整根松木。须采用榫卯结构,无任何金属材料,表面喷漆处理。见图3。安装时有1.9m长的部分埋在地下,并用要求刷沥青漆防腐,用C25混凝土浇筑进行固定。立柱垂直度误差在1度内。

图3
(3)龙门架8组,每组长宽高和结构不等,柱子直径300mm。要求竖直圆柱部分为整根松门。须采用榫卯结构,无任何金属材料,表面喷漆处理。其中一组结构见图4。安装时有1m至1.5m长的部分埋在地下,并用要求刷沥青漆防腐,用C25混凝土浇筑进行固定。立柱垂直度误差在1度内。

图4
(4)斜坡木龙骨在龙门架上方,用于形成一个14°的斜坡面,材料为防腐木,无任何金属材料,表面喷漆处理,保证龙门垂直误差不超过2°,斜坡平面度误差不超过10mm,14°的角度误差不超过0.5°。龙门架中心位置误差正负5mm。

图5斜坡木龙骨
(5)加工完成后需运输到采购方指定地点并进行安装,运输过程中必须做好减震等保护措施,保证无损。安装过程须遵守相关安全规范。
2、质量和测试要求:
(1)前坡长度误差不超过5mm,角度误差不超过0.5度。
(2)前坡由8个龙门支撑,1、2、3、4号龙门只能在顶端加一根横梁得到最大高度。5、6号龙门下高度不小于5000mm,7、8号龙门下高度不小于6000mm,斜坡上铺20mm防腐木,固定牢靠,保证平整度,以及后期人员在上面施工安全。
(3)中段立柱间距18800*10440误差20mm,垂直度误差1度。高度不小于10000mm,误差10mm,柱顶承重10t。
(4)所有木工部分不能有任何金属(螺丝、钉子等)。
(5)所有部件由供货方进行户外安装,包括龙门架和立柱现场的支立和填埋过程的保护,须保证户外使用的安全性和寿命。
(6)产品尺寸符合图纸要求,出厂前,附出厂合格证。
(7)供货方对采购方图纸,模具,承担保密义务。
设备验收/质保及售后保障要求:
1.验收地点:休闲小栈
2.验收方法及判据:
a)部件及数量与要求相符。
b)达到所提技术参数和功能要求。
3.送货时间:合同签订后45天内完成安装。
4.质保及售后保障要求:供方对需方提出的问题在24小时内给出响应,在需方认为必须时48小时内到现场处理。买方处理不了的设备故障、缺陷等,由供方在接到通知时起2天内赶到现场处理。
二、投标须知:
(一)供应商对磋商文件的各项条款要做出实质性的响应。所编响应文件一式两份(正本一份、副本两份)。另需把所供产品的名称、生产厂家、品牌或商标、型号、规格、数量、单价、总报价、交货期及主要承诺等,打印在一张纸上(清单),一式三份。
(二)如成交后需签定外贸合同,供应商应在响应文件中阐明与外贸合同中卖方公司之关系,并注明卖方公司的名称、联系地址及联系人、开户银行及账号等信息;内贸合同需注明公司名称、联系地址及联系人、开户银行及账号等信息。
(三)供应商可向采购方索取与磋商相关的其它文件。
(四)供应商要自行检查所收磋商文件是否齐全,若有遗漏,要立即告知采购方补正。
(五)采购方发出的磋商文件若有变动,将以书面方式及时通知供应商,任何口头答复、通知无效。
(六)供应商编写的响应文件内容如有涂改、不详或无印章(公章或法人印章)者,均视为无效。响应文件按规定封存后,应加盖公章。
(七)响应文件在磋商日期后更改无效。
(八)响应文件正副本内容必须一致,若不一致时,以正本为准。
(九)付款方式:验收合格后付100%。
(十)磋商文件解释权属磋商单位。
供应商报名方式:
符合本公告要求的供应商,发送邮件至[email protected]报名。报名时间:2025年2月17日至2025年2月21日下午4点前。报名信息须包含:供应厂商名称、法定代表人信息、委托代理人信息、联系方式(邮箱、电话)等。
三、对供应商资格要求:
(一)供应商的资格要求
1.具有独立法人资格及相关证照,具有良好信誉及合同履行能力,具有良好资金、财务状况。
2.供应商应为所提供产品的生产企业,或具有所提供生产企业出具的针对本项目的产品授权书。
3.供应商不得被列入失信被执行人、重大税收违法案件当事人名单、政府采购严重违法失信行为名单记录,且在西安交大采购办供应商库中无不良记录。
(二)资格证明文件:
磋商时必须按要求提供以下有效资格证明文件:(原件副本,复印件无效)
1.法人营业执照副本(或登记证、注册证)
2.法人授权委托书(或首席代表委托书),授权人及被授权人需签章并加盖公章(法人本人前来的需提供法人证明书并加盖公章)
3.供应商代表(法人或者被授权人)身份证原件
4.税收缴纳证明:提供上一年度至今已缴纳的至少一个月的纳税证明或完税证明,依法免税的单位应提供相关证明材料
5.业绩证明:提供近三年内一份同类服务项目的合同原件
6.书面声明:参加本次磋商活动前三年内在经营活动中没有重大违纪,以及未被列入失信被执行人、重大税收违法案件当事人名单、政府采购严重违法失信行为记录名单的书面声明。
所有资格证件,不要密封在投标文件内,随身携带,以便现场验证。
四、采购文件的发布时间及地点
预算金额:48万元
报名时间:2025年2月17日至2025年2月21日下午4点前
报名方式:报名的供应商将通过发邮件方式报名
磋商时间和地点:由本单位另行通知